重庆江北区观音桥盈嘉中心负1楼摩天轮电玩城
【项目名称】摩天轮电玩城
【项目地址】重庆观音桥步行街盈嘉中心
【设计单位】好好设计
【设计面积】1200㎡
【本案设计师】李金龙、林安全
【时间周期】设计1个月+施工2个月
【设计说明】 主题元素:健康、明亮、适合各种年龄层次人玩耍,区别于传统又创新与传统,走自己的路线,让别人跟着走。
------ Design by 好好设计 ------
原始结构图:空间比较大,要求通透敞开,可以尽情发挥功能布局

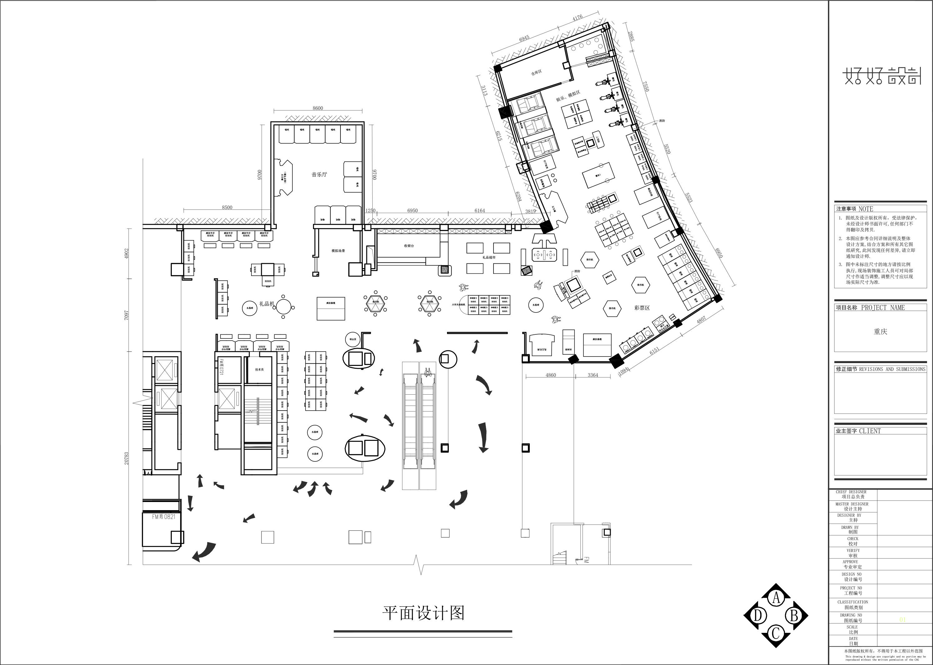
平面布局图:动线清晰,游戏机器功能做好功能区分,大脑思维慢慢浮现整个造型,设计周期1个月 + 施工周期2个月开业。

这个科幻屏幕,冥思苦想了好久的创意,原本只有在电影游戏场景立面才会有,这次,大胆的尝试,,,



大胆尝试,为了做这个立体门头,几个老木工师傅煞费苦心,守在木匠身边现场指导讨论制作,差点没把师傅崩溃做哭,,哈哈(坏笑一个),,















每一个设计细节,施工细节,节点大样,为了设计,身体差点累垮,
看到完成的竣工后,满满的成就感,,,
【好好设计】
www.haohaosheji.com
------ Design by 好好设计 ------
原始结构图:空间比较大,要求通透敞开,可以尽情发挥功能布局

平面布局图:动线清晰,游戏机器功能做好功能区分,大脑思维慢慢浮现整个造型,设计周期1个月 + 施工周期2个月开业。

这个科幻屏幕,冥思苦想了好久的创意,原本只有在电影游戏场景立面才会有,这次,大胆的尝试,,,



大胆尝试,为了做这个立体门头,几个老木工师傅煞费苦心,守在木匠身边现场指导讨论制作,差点没把师傅崩溃做哭,,哈哈(坏笑一个),,















每一个设计细节,施工细节,节点大样,为了设计,身体差点累垮,
看到完成的竣工后,满满的成就感,,,
【好好设计】
www.haohaosheji.com



