服装店女士服装店
【项目名称】BLOME女装店
【项目地址】重庆观音桥步行街北城天街
【设计单位】好好设计
【设计面积】70㎡
【设计说明】简约不简单,时尚不过时。
------ Design by 好好设计 ------
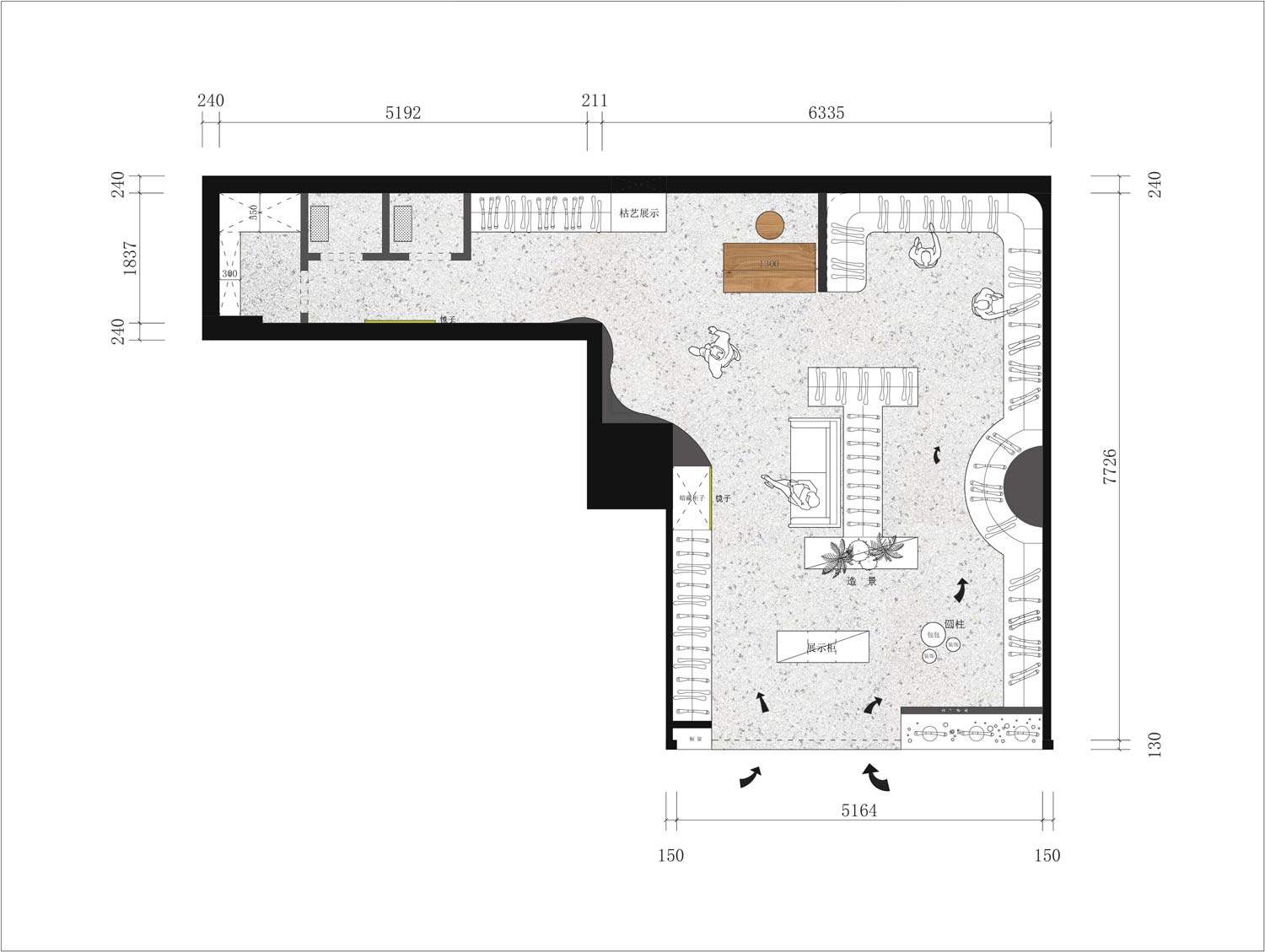
原始结构图:

平面设计方案1:
用柔和的弧线表现手法,

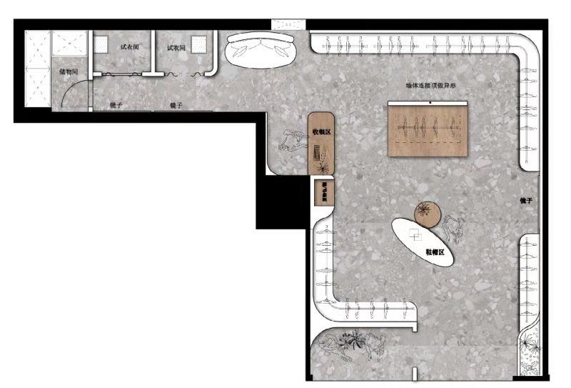
平面设计方案2:
用空间敞开表现法,

业主选择平面方案2,
简约手法,
简约而不简单,显得更加时尚,
更适合年轻女性,
显得轻轻地高级感:



设计师,就像一个灵魂魔术手,让社会变得更美好!
------ Design by 好好设计 ------
原始结构图:

平面设计方案1:
用柔和的弧线表现手法,

平面设计方案2:
用空间敞开表现法,

业主选择平面方案2,
简约手法,
简约而不简单,显得更加时尚,
更适合年轻女性,
显得轻轻地高级感:



设计师,就像一个灵魂魔术手,让社会变得更美好!



